29
May
2019
看得见风景的城池——苏文体,让公共建筑属于每一个人


苏州高新区文体中心位于苏州科技城内,背靠小龙山,被太湖大道和浒光运河所环抱,占地三百余亩,馆室十七万方。

▲远眺苏文体


▲从远及近
其所处的地块曾是采石场,挖掘后留下的巨大石坑形成了湖面,而剩下的石壁环绕着湖的另一边,建筑师以地形的脉络作为概念设计的源头,延续原有的山体和石壁使整个建筑群体与环境融合在一起。我们希望建筑成为山的延续,成为周边环境的一部分:延续原有的山体和石壁使整个建筑群体与环境融合在一起,在亲人的尺度下成为隐形于城市环境的地景化建筑,而不是一个高高在上、拒人于千里之外的庞然大物。
苏州高新区文体中心被当作城市空间和生活的一部分设计,17万平方米的巨大体量呈现为功能小模块的搭接,从而建筑的体量也得以消解,成为城市的一个有机组成部分。这种与功能紧密相扣的空间结构,正是“云形水石”概念的真正意义。
在数字化的背景之下,建筑师们希望通过用一些简单抽象的方形体块,以一种魔方式、像素化的方式堆积在一起,来传达一种类似太湖石般精妙复杂的空间状态。凹凸的体块使空间产生一种“留白”,形式与功能的对应不再单一不变,多意和辩证的空洞结构的自主性可以通过复制和变异来适应环境,引导建筑自发生长而不破坏它的完整性。
▼模数制的、像素化的抽象手法






“云形水石”的概念是文化与未来的延续:承袭苏州园林虚实结合的空间构型的同时,多意的弹性空间组织可以为未来运营提供更多可能性。这也许是在中国复杂多变的项目环境下,既提高运营功能的可变性和灵活性,同时在未来需要修改时保护设计概念的一种策略。


在这个项目的设计中,重点从“事件性”转移到了“日常性”,使其成为城市生活的延续:穿行场地的商业街道和丰富的公共开放空间将这个体量庞大的公共建筑归还给周边市民。几乎所有的主要功能模块都在这条街道上设有出入口,图书馆、文化中心、电影院、游泳馆、咖啡馆、书店、餐厅等,都成为这条街道生活经验的一部分。
▼公共开放空间——广场





▼公共开放空间——商业街道





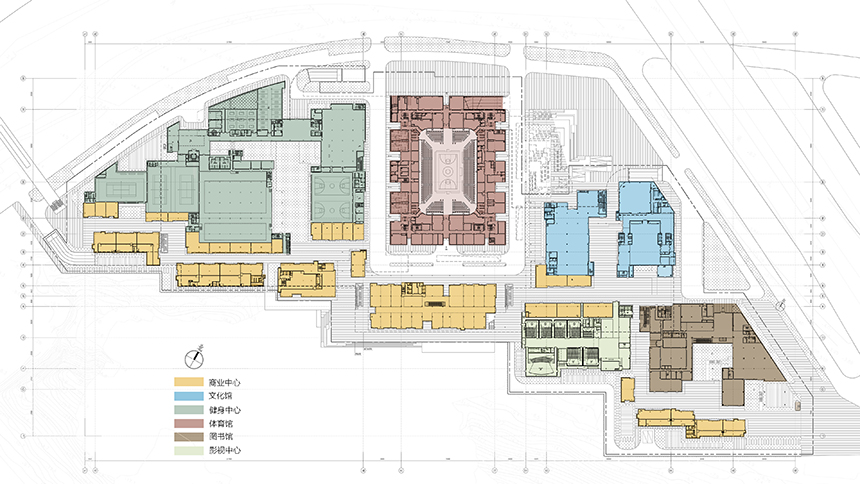
在商业街道之上,六米平台上的台地广场作为地块当中的主要集散场地而存在,和其下方的商业街道一起,展现着城市生活的多样性和复杂性,在步行、购物、休息、逗留和交流之间产生许多重叠且频繁的日常性转换。作为综合性文化体育建筑群,苏州高新区文体中心主要功能分为三大板块:文化空间、体育空间和商业空间,涵盖区文化馆、图书馆、体育馆、全民健身中心、影视中心以及室外休闲广场等配套设施。
▼公共开放空间——不同层次的庭院序列空间







▼部分主场馆

▼设计图纸

|首层拼合平面图|

|体育馆立面图|

|文化馆立面图|

|体育馆剖面图|
地址:中国,江苏省,苏州市高新区
总面积:17万平方米
建筑设计:乐鱼网页版登录入口
设计团队:
建筑:黄向明、韩健、陈焱、周欣、白宇、肖菲、王晓洋、吕晓宇、曾哲、冯博、陆懿、刘阳、毕泽豪、刘沛、袁佳妮、杜鹏、倪子禹、马丽娜、李新萌、张江伟
结构:谢旺兰、李伟兴、聂焱、苗永志、沈杰、邓德君、冯亮波、李婷婷、季绍凯、熊维建、吴磊、王佳杰、刘威、杨胜、陆晓勇
机电:陈涛、王关越、靳京、王恒之、郑柯岩、曾峭
给排水:王榕梅、王晓宁、胡红梅
暖通:王俊强、刘华清、赵芸立、罗渊、尹家杰、薛飞
竣工时间:2016.9(景观将于2017年竣工)
业主及运营者:苏州高新区文体发展有限公司
合作单位:
钢结构、金属屋面顾问:浙江精工
幕墙顾问:柯利达、金螳螂
景观设计:BAU、金螳螂
LOGO:用心创造
灯光顾问:朗辉
室内设计:柯利达、苏州国贸
摄影师:上海陈颢摄影工作室,成都存在建筑摄影有限公司