29
May
2019
天华全程参与陕西省首个装配整体式办公楼项目
陕西建工新型建材有限公司办公楼为陕西省首个采用装配整体式框架结构建造的公建项目,目前,该项目已经顺利完成三层预制框架柱、框架梁、叠合板和双T板的安装。
天华作为PC咨询顾问和深化设计单位,全过程参与了该项目的设计、生产和施工,突显天华集团对于装配式建筑这一热点领域的专业能力,助力城市发展更好,更快,更绿色。
1.项目概况
陕建新型建材办公楼位于西咸新区秦汉工业园的陕西建筑产业基地,建设单位:陕西建工新型建材有限公司;主体建筑设计单位:陕西建工集团总公司建筑设计院;总承包单位:陕建八建集团;PC顾问及深化单位:天华集团。该项目作为陕西省首个采用装配整体式框架结构+双T板的办公项目,在当地起到了良好的示范效应。
单体总面积为5400平方米,地上4层,局部2层,结构总高度15.55m。由抗震缝分为两个结构单元,四层办公部分,从首层柱即开始预制,主要预制构件有预制框架柱、预制框架梁、预制次梁、预制钢筋桁架叠合板底板、预制空调板、预制楼梯和预制隔墙;二层裙房配套的大跨度会议室(单间面积390平方米),采用了15m跨的预制双T板叠合板,叠合现浇层厚80mm。
◥ 产业基地全景

◥ 首层预制柱、预制梁全景
2.技术特点
2.1平面布置
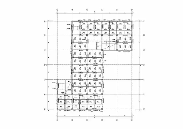
本工程按照模数化的设计理念对建筑平面进行了优化,遵循少规格多组合的原则。典型柱跨为7.5m,设计中同一规格梁、柱截面尺寸保持一致。所有框架柱(门头除外)均为预制,平面上除楼电梯间、卫生间区域外,其余位置均采用预制叠合梁板。
◥ 典型楼层预制构件布置图
2.2节点设计
框架梁柱节点中,充分考虑底筋避让和核心区箍筋安放顺序,保证节点区域的顺利施工。
◥ 底筋避让和箍筋安放

◥ 中柱、边柱梁柱节点核心区箍筋
预制主梁和预制次梁的连接采用牛担板节点。

◥ 牛担板节点
2.3 预制叠合板做法
本工程采用预制钢筋桁架叠合板,预制底板厚60mm,现浇叠合层80mm,板边不出筋,采用密拼拼缝。
◥ 预制叠合板底板
2.4 双T板的应用
二层配套办公中的大会议室,单间面积为390平方米,会议室楼面和屋顶层均采用了预制双T板叠合板。每层布置9块15m跨预应力双T板,肋高和预应力筋数量按照会议室恒、活荷载单独进行设计,单块双T板重约11.5t,现场采用汽车吊安装。
◥ 15m跨预制双T板

◥ 双T板端部横肋
3.BIM技术的应用
本项目采用了天华集团自主开发的三维BIM协作平台进行构件深化设计,对构件、钢筋、金属件等进行碰撞检查,并提前进行了预拼装施工模拟,有效避免了施工过程中可能发生的安装问题。
◥ BIM模型效果图

◥ 预制构件布置效果图

◥ 预制构件深化界面

◥ 预制楼梯深化界面
通过BIM模型导入3D打印机,选取个别构件进行了3D打印,直观的展示了构件的形状细节。

◥ 预制双T板3D模型(左)、预制楼梯3D模型 (右)
◥ 含有预制梯板的楼梯间3D模型
在BIM模型的基础上,进行预拼装施工模拟。
◥ 叠合板吊装

◥ 节点现浇

◥ 柱吊装
4.结语
本项目为陕西省首个预制装配整体式框架结构,同时也是预制双T板叠合板在办公建筑中的首次应用。在项目实施过程中,业主方积极把控各个环节;设计方精心设计,在自主开发的三维BIM协作平台上应用BIM技术进行构件深化,并充分应用BIM模型进行碰撞检查和施工模拟,保证了项目顺利进行;构件生产方工作做细做实,确保了构件产品顺利生产;施工方充分重视,制定了专项施工方案,为构件安装就位提供了高精度保障。
天华对于装配式建筑的探索从未停歇,目前天华主编参编相关标准或图集13项,主持装配式建筑面积已超800万平方米,56个项目全面覆盖上海、深圳、合肥、重庆、南京、大连、西安、宁波、青岛、无锡、蚌埠等城市。未来的天华将继续专注城市建设领域专业服务,为行业转型升级、城市持续发展贡献更多力量。
◥ 天华装配式建筑设计及研发成果
作者:刘琛
